CAD Dienstleistung
Mit CAD Outsourcing bleiben Sie flexibel, expandieren Sie mit Ihrem Unternehmen ohne das Risiko von fixen Personalkosten…
Als Zeichenbüro unterstützen wir Architekten, Bauträger, Immobilienmakler und Sie mit der Erstellung von Bauzeichnungen in der Fachrichtung Hochbau. Mit über 25 Jahren Erfahrung bieten wir fachkompetente und zuverlässige Unterstützung bei Ihren Projekten. Mit unseren Outsourcing Dienstleistungen für die Bauantragsplanung, Werk- / Ausführungsplanung, Abbruchpläne , Flucht- und Rettungswegpläne, Feuerwehrpläne, Präsentations- Zeichnungen oder bei sonstigen allgemeinen Bauzeichnungen, haben Sie die Kapazitäten frei die Sie bei Bedarf benötigen.
3D Visualisierung
Das Marketingkonzept der heutigen Zeit und unerlässlich für eine professionelle Präsentation.
Eine 3D Visualisierung ermöglicht eine Innovative Produkt- und Immobilien Präsentation, dass Marketingkonzept der heutigen Zeit und das aus gutem Grund. Die dritte Dimension macht Ideen sichtbar, nahezu greifbar und ermöglicht eine virtuelle Darstellung in einer visuell erfassbaren Form. Mit faszinierenden Möglichkeiten erstellen wir Ihr Projekt anspruchsvoll und realitätsnah in Szene. Ob einzelne Bilder, Animationen, interaktive 3D Modelle für eine Echtzeitdarstellung oder für den 3D Druck. Wir erarbeiten Ihnen das passende Konzept für eine einzigartige Präsentation und erfolgreiche Vermarktung.
unsere Highlights
Bürgerhaus-Allendorf
Erstellung der Ausführungsplanung für das Bürgerhaus in Allendorf [...]
Wohnanlage Hachenburg
Erstellung der Ausführungsplanung für eine Wohnanlage inklusive Servicewohnen [...]
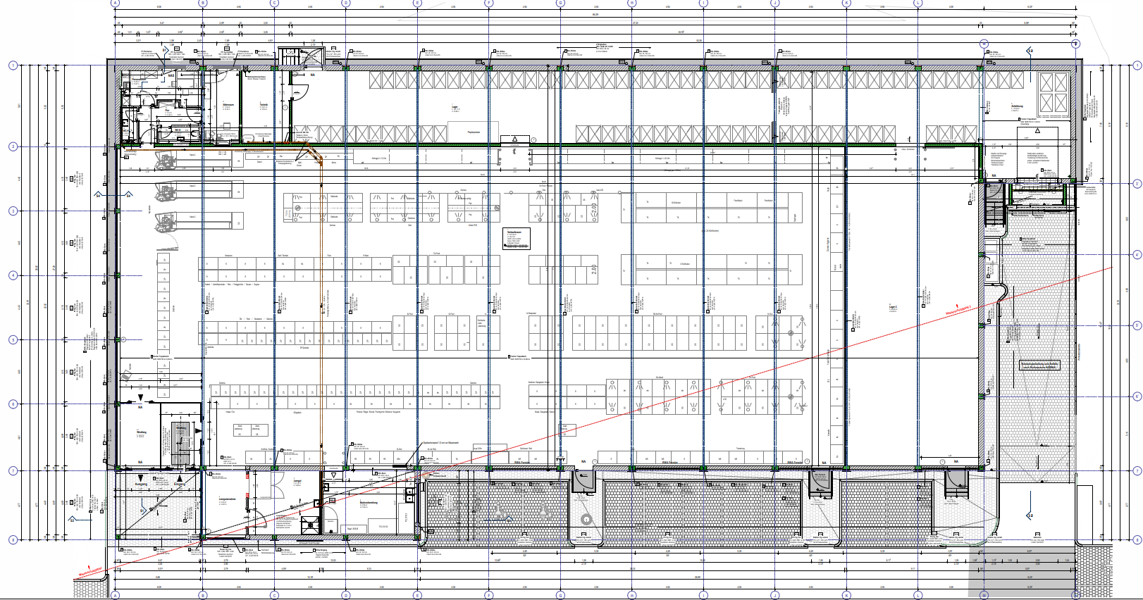
NORMA-Markt Anhausen
Erstellung der Ausführungsplanung für einen NORMA-Markt in Anhausen [...]




















