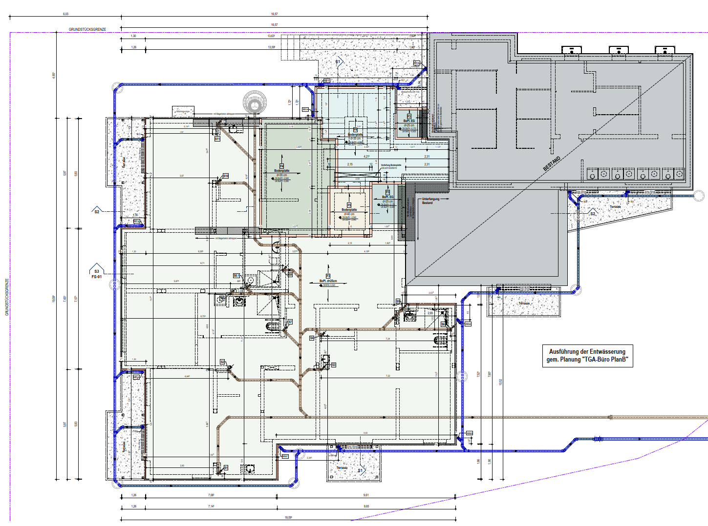
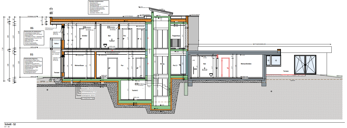
Erstellung der Ausführungsplanung für eine Wohnanlage inklusive Servicewohnen in Hachenburg
Wohnanlage Hachenburg
Von planung-klein|2026-03-31T13:51:54+00:00April 15th, 2024|Beiträge, CAD Dienstleistung, Referenzen-Werkplanung|0 Kommentare
Erstellung der Ausführungsplanung für eine Wohnanlage inklusive Servicewohnen in Hachenburg








