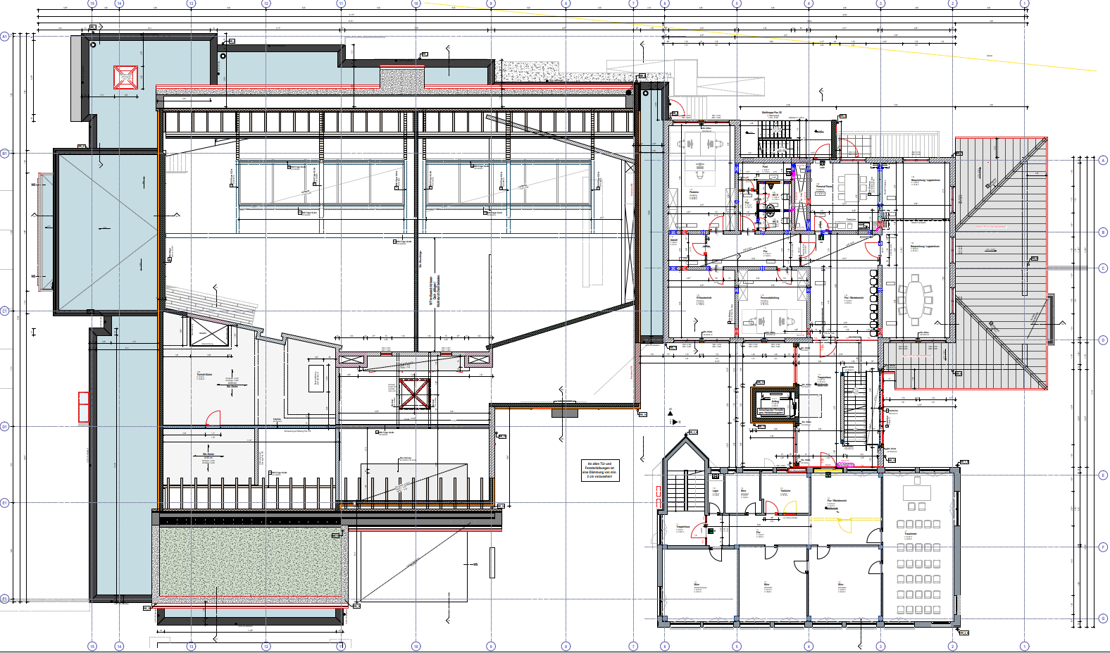
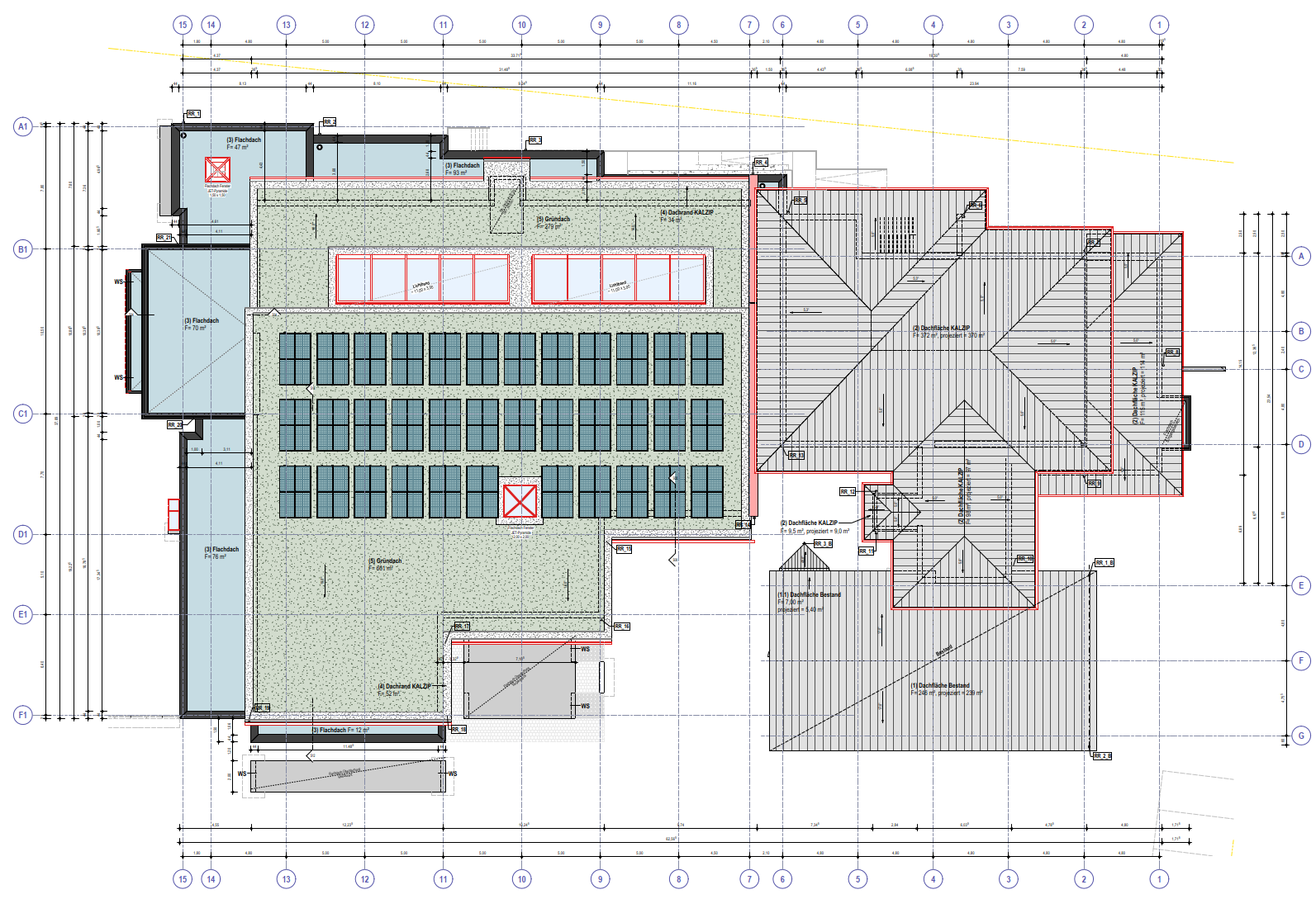
Erstellung der Ausführungsplanung für das Bürgerhaus in Allendorf
Bürgerhaus-Allendorf
Von planung-klein|2026-03-31T13:53:25+00:00Dezember 15th, 2024|Beiträge, CAD Dienstleistung, Referenzen-Werkplanung|0 Kommentare
Erstellung der Ausführungsplanung für das Bürgerhaus in Allendorf













